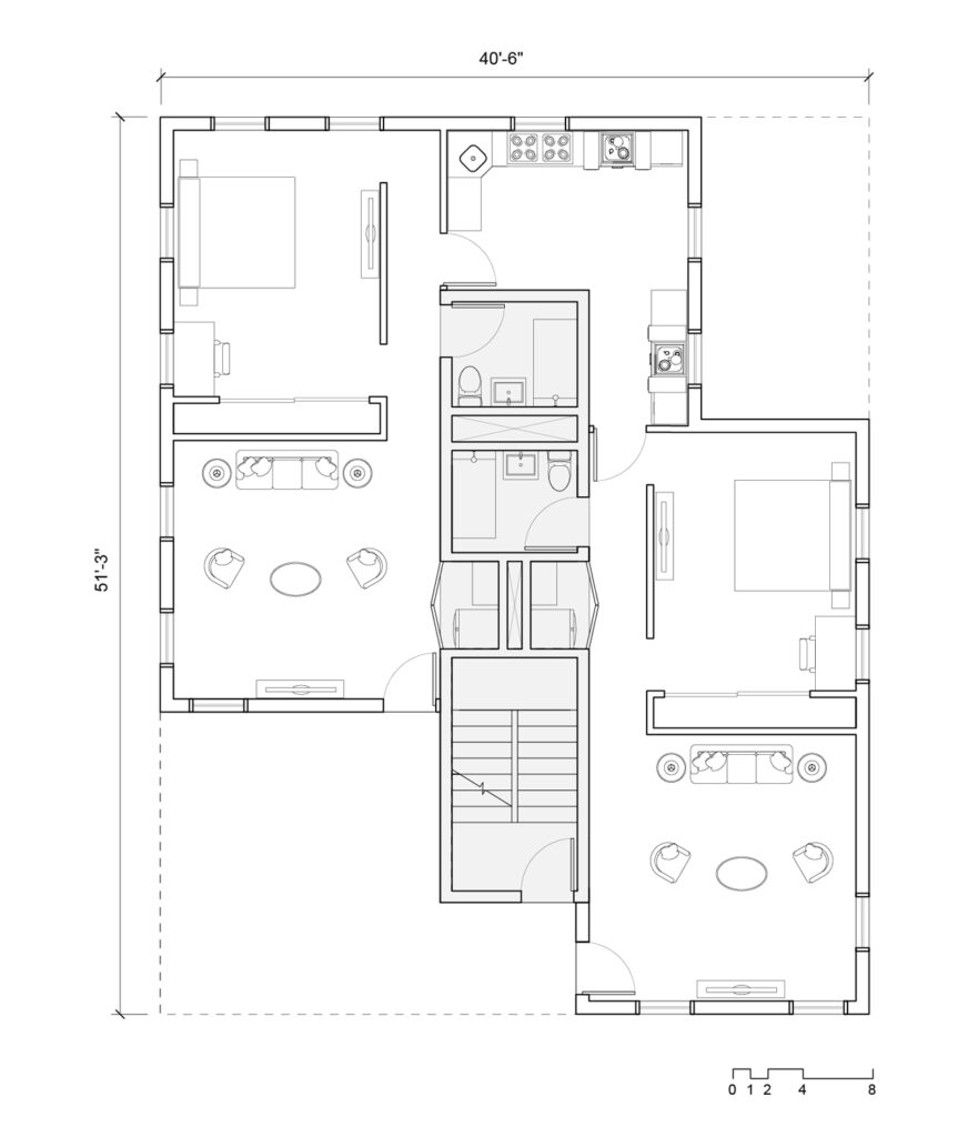
A team of Harvard Graduate School of Design students has won the Ivory Innovations 2025 Hack-A-House competition in the Construction & Design category. Hack-A-House, an annual virtual competition, gives students a chance to win $5,000 while creating novel solutions to tackle America’s housing crisis. The One Block Away team—composed of Justin Joel Tan (MRE ’26), Marko Velazquez (MRE ’26), Noah Garcia (MRE ’26), Tejas S (MRE ’26), and Pranav Subramanian (MDes ’27)—won for their project “NeighborCore ,” which consists of a new housing typology that makes housing more affordable through shared spaces, modular construction, and flexible layouts.
“Hack-A-House uniquely empowers students from colleges and universities nationwide to create real-world solutions to address today’s housing crisis in a 24-hour period,” said Ian Cahoon, director of Innovations at Ivory Innovations. “It is truly amazing to see the innovative ideas and solutions teams like One Block Away can produce in such a short time. In addition to One Block Away’s winning entry, this year’s competitors presented solutions ranging from improving lending to first time buyers to increasing access to affordable housing.”


Combining off- and onsite construction techniques, One Block Away’s “NeighborCore” proposes an alternative to traditional single-family homes, which are often too big and too expensive for today’s changing population demographics. “Together, we explored a new housing typology aimed at bridging the gap between apartment living and home ownership by leveraging innovative design, efficient construction methods, existing distribution, and financial feasibility,” said One Block Away team member Tan. “We believe our solution, ‘NeighborCore,’ delivers a vision that can be scaled, producing densification while still blending into the character of existing neighborhoods.”
The Ivory Innovations 2025 Hack-A-House recognizes winners in three areas—Finance, Policy & Regulatory Reform, Construction & Design. Participants were tasked with addressing specific challenges impacting housing affordability. After selecting a topic, contestants spent the next 24 hours strategizing with their teams, meeting with industry experts, and preparing a short live presentation for judges and other competitors. A panel of judges that included real estate industry experts, startup founders, academics, and leaders of major companies selected winning teams in the three categories.
The Hack-A-House winners will attend the upcoming 2025 Ivory Prize Summit on October 29, at the University of Utah in Salt Lake City, and present their ideas in person. After the teams present, the audience, which includes a live stream , will vote to select the grand prize winner.
Both an operating foundation and an academic center based at the University of Utah’s David Eccles School of Business, Ivory Innovations catalyzes high-impact innovations in housing affordability. They bridge research and industry to support cross-sector solutions, provide recognition and funding for groundbreaking ideas, engage a global student population, and contribute directly to the development of affordable housing.
